logo

ТОП-12 программ для проектирования отопления частных домов

Создание системы обогрева раньше занимало недели. Сейчас программа для проектирования отопления частного дома позволяет быстро рассчитать мощность котла, создать общую схему и составить смету. В обзоре показали 12 лучших решений.

Рейтинг статьи:

5.0 Оценок: 3
Программы для проектирования отопления

Как выбрать программу для проектирования отопления?

При выборе софта обычно учитывают несколько критериев. Перечислим базовые.

  • Уровень подготовки. Начинающим лучше смотреть в сторону приложений с наглядным конструктором и встроенными шаблонами. Профессионалам больше пригодятся инженерные CAD-платформы с десятками функций.
  • Точность вычислений. Софт должен учитывать теплопотери через стены, окна и перекрытия, климатическую зону, тип топлива и характеристики приборов.
  • Библиотека комплектующих. Важно, чтобы в ПО была база с реальными типами батарей, трубопроводов и фитингов от заводов-изготовителей. Это экономит время на поиск технических данных.
  • Визуализация. 3D-режим помогает увидеть, где разместить отопительные приборы и как инженерные сети впишутся в интерьер.
  • Подсчет материалов. Софт должен формировать ведомость с указанием количества трубопроводов, креплений и фурнитуры.
  • Сохранение документации. Удобно выгружать схемы в PDF, DWG или других форматах для передачи монтажникам и согласования в контролирующих органах.
  • Стоимость. Для разового проекта хватит демоверсии. Если работать регулярно, то выгодно купить лицензию.

Выбор редакции

  1. первое место Домашний Инженер 3D
    Русскоязычный планировщик с расчетом сметы на материалы и готовыми библиотеками оборудования от производителей.
    Скачать для Windows
  2. серебрянный кубок AutoCAD
    Мировой стандарт проектирования с точными чертежами, поддержкой плагинов для инженерных систем и экспортом в любые форматы.
  3. бронзовый кубок Компас 3D
    Отечественная система трехмерного моделирования с встроенными ГОСТами и модулями для расчета трубопроводов.

Простые программы для проектирования отопления частного дома для новичков

Владельцы загородных коттеджей нередко берутся за проектирование обогрева самостоятельно, чтобы контролировать бюджет и понимать, как устроена система. Для этого не требуются сложные CAD-редакторы с сотнями опций. Хватит программы с наглядным конструктором и встроенными вычислениями. Ниже расскажем про 7 вариантов, в которых разберется человек без инженерного бэкграунда, даже если он делает проект здания в первый раз.

Домашний Инженер 3D

интерфейс Домашний Инженер 3D

ОС: Windows

Цена: бесплатная версия на 5 дней с ограничениями — нельзя сохранять проекты, делать сметы и рисовать некоторые объекты; PRO-тариф — от 890 руб./год

Русский язык: да

Российская программа для расчета отопления в частном доме, которая объединяет все проектные работы в одном окне. Рисуете однотрубную, двухтрубную или коллекторную разводку, расставляете радиаторы, а онлайн-калькуляторы на официальном сайте вычисляют теплопотери, расход воды и освещение помещения.

Плюсы:
  • русскоязычная техподдержка;
  • есть доступные видеоуроки и справочники;
  • расчет сметы на материалы и работы;
  • несколько вариантов 3D-просмотра для визуализации трубопроводов;
  • каталог из 1150+ отделочных материалов для внутренних помещений, крыш и фасадов.
Минусы:
  • нельзя спланировать размещение проводов по высоте;
  • не поддерживается на macOS и Linux.
Скачать бесплатно
Используйте режим «Виртуальная прогулка», чтобы проверить, не мешают ли трубы проходу или мебели.

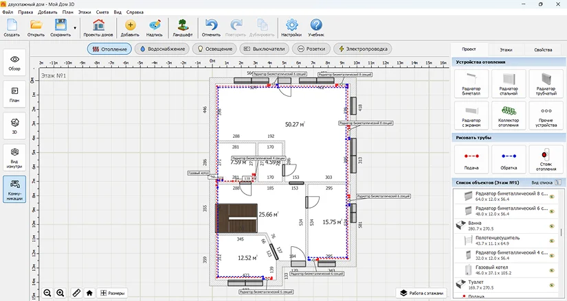
Мой Дом 3D

программа-проектировщик

ОС: Windows

Цена: бесплатная версия на 5 дней с ограничениями — нельзя проектировать экстерьер; PRO-тариф — от 693 руб./год

Русский язык: да

Российский проектировщик с акцентом на визуализацию и дизайн интерьера. Система обогрева проектируется в отдельной вкладке: размещаете приборы, ставите котлы, циркуляционный насос и расширительный бак, затем чертите трубопроводы подачи и обратки. Софт сам масштабирует отсканированный план и показывает трехмерную модель параллельно с чертежом.

Плюсы:
  • получится оперативно сделать проект дома;
  • предусмотрена виртуальная прогулка по помещению для оценки обстановки с любого ракурса;
  • большой ассортимент материалов и загрузка собственных текстур;
  • составление сметы на комплектующие и работы.
Минусы:
  • ограниченный выбор оборудования;
  • для узкопрофессиональных задач функционала недостаточно.
Скачать для Windows

Remplanner

онлайн-сервис Remplanner

ОС: web

Цена: бесплатная версия с ограничениями — нет 3D визуализации, нет учета толщины стен; PRO-тариф — от 690 руб./месяц

Русский язык: да

Онлайн-сервис для проектирования отопления и водоснабжения с акцентом на технические чертежи. Нарисовать схемы можно на отдельных планировочных листах. Сервис автоматически считает количество оборудования и длину труб, формирует ведомости, которые можно передать монтажным бригадам. Готовые чертежи экспортируются в PDF-альбомы со стандартным оформлением.

Плюсы:
  • быстрое создание вариантов планировок, можно добавлять этажи;
  • можно переворачивать, двигать все элементы, изменять их размеры;
  • раздельные листы для каждой системы, коммуникации не будут путаться;
  • смета на ремонт расписывается подробно.
Минусы:
  • нет мобильной версии;
  • 3D-визуализация доступна только в платной версии.

Valtec

программа для расчета системы отопления

ОС: Windows, Linux

Цена: бесплатно

Русский язык: да

Программа для расчета системы отопления от производителя инженерной сантехники. VALTEC.PRG вычисляет теплопотери помещений, мощность котла и радиаторов, делает точный подсчет расходов теплоносителя и гидравлические характеристики сети. Подходит для проектирования водяного напольного, настенного и радиаторного обогрева. Встроенные справочники содержат технические характеристики труб, фитингов и отопительных приборов.

Плюсы:
  • полностью бесплатный софт с открытым доступом;
  • сертифицирован по строительным нормативам РФ и требованиям НП «АВОК»;
  • встроенные калькуляторы и конвертеры единиц измерения;
  • обучающие видеоролики от разработчика по всем этапам.
Минусы:
  • нет визуального конструктора, только числовые расчеты без чертежей;
  • нельзя использовать раздельно деление на нетто и брутто.

OVplan

программа OVplan

ОС: Windows

Цена: бесплатно

Русский язык: да

Инструмент от немецкого производителя Oventrop для создания схем трубопроводов отопления и теплых полов. Сеть строится графически: перетаскиваете стандартные компоненты на рабочую область и соединяете их. Программа автоматически вычисляет настройки термостатических вентилей, подбирает диаметры труб, определяет мощность насоса и котла.

Плюсы:
  • есть простой визуальный редактор схем;
  • встроенная база трубопроводов разных производителей;
  • автоматическая генерация спецификации заказа с артикулами.
Минусы:
  • термостатические вентили и регуляторы исключительно от Oventrop;
  • мощность радиаторов нужно определять отдельно;
  • иногда возникают сбои при выводе чертежей.

Easymnemo

Easymnemo

ОС: Windows

Цена: бесплатная версия на 30 дней с ограничениями — не сохраняет файлы моделей и схем; PRO-тариф — 8600 руб. за 1 пользователя

Русский язык: да

Векторное приложение для создания двухмерных схем теплоснабжения, узлов учета тепловой энергии и подключения котлового оборудования. Библиотека содержит обозначения по ГОСТ и АВОК. Также подходит для черчения схем водоподготовки, газоснабжения, водопровода и канализации, включая контуры теплого пола.

Плюсы:
  • одна схема может содержать текст на пяти языках одновременно;
  • занимает мало места на ПК, быстро запускается;
  • есть готовые шаблоны разных схем.
Минусы:
  • нет трехмерной визуализации или автоматических расчетов;
  • не заменяет полноценную САПР.

Sweet Home 3D

интерфейс Sweet Home 3D

ОС: Windows, macOS, Linux, web

Цена: бесплатно с ограниченным набором функций и предметов; PRO-тариф — от $19,99/месяц

Русский язык: да

Популярное ПО с открытым исходным кодом для дизайна интерьера и планировки помещений. Кроме основного назначения, программа может помочь и с планированием размещения отопительного оборудования. Для этого импортируйте 3D-модели радиаторов, котлов, бойлеров, расположите их на плане и оцените, как сантехнический узел впишется в пространство.

Плюсы:
  • интуитивный интерфейс на русском языке;
  • огромная библиотека 3D-моделей;
  • синхронная работа 2D и 3D.
Минусы:
  • не подходит для подсчетов теплопотерь или гидравлики;
  • примитивное качество рендера по сравнению с профессиональными решениями.

Лучшие программы для расчета систем
отопления для специалистов

Инженеры-проектировщики работают с объектами, где ошибка оборачивается сотнями тысяч рублей убытков. Им нужны CAD-системы с точными вычислениями по ГОСТам, рабочие чертежи в масштабе и экспорт документации для согласований. Собрали профессиональные программы для проектирования систем отопления, которые справятся с этими задачами.

nanoCAD BIM Отопление

софт для проектирования отопления

ОС: Windows, Linux, РЭД ОС

Цена: пробная версия на 30 дней без ограничений; PRO-тариф — от 41 100 руб./год

Русский язык: да

Отечественный софт для проектирования систем отопления с расчетами. Программа автоматически строит 3D-модель, вычисляет гидравлику и теплопотери, формирует аксонометрические схемы по ГОСТу. Графический редактор совместим с форматом DWG, чертежи из AutoCAD можно открывать без конвертации. База оборудования содержит 20 000 элементов от Honeywell, Danfoss, Rifar и других производителей.

Плюсы:
  • настроена под российские нормативы;
  • можно поменять диаметр трубы на плане, и пересчет системы произойдет мгновенно;
  • в отличие от зарубежных САПР, создает именно аксонометрию, а не изометрию;
  • автоматически подбирает и расставляет фитинги;
  • интеграция со сметной системой АВС и экспорт в IFC для совместной работы в BIM.
Минусы:
  • высокая стоимость;
  • надо дополнительно устанавливать платформу nanoCAD;
  • для инженеров без опыта черчения в CAD освоение займет много времени.
Обязательно настройте горячие клавиши под себя в первый же день работы. В противном случае вам придется потратить больше времени на освоение софта.

SketchUp

SketchUp

ОС: Windows, macOS, web

Цена: бесплатная версия на 30 дней с ограничениями — без доступа к ряду плагинов и встроенному каталогу 3D моделей; PRO-тариф — от $19,99/месяц

Русский язык: да

Универсальный 3D-редактор для архитекторов и дизайнеров, который можно использовать как программу для проектирования отопления и водоснабжения. Подходит для визуального моделирования инженерных систем: получится показать заказчику, как трубы пройдут через помещения, где разместится оборудование, как система впишется в интерьер.

Плюсы:
  • сотни готовых моделей мебели и сантехники в библиотеке;
  • можно использовать дополнительные плагины;
  • удобная визуализация.
Минусы:
  • нет автоматических расчетов гидравлики и теплопотерь, так как это не инженерная САПР;
  • не подойдет для сложных проектов.

Компас-3D

лучшие бесплатные программы для проектирования отопления

ОС: Windows

Цена: бесплатная версия на 60 дней с ограничениями — есть лишь однолистные чертежи; PRO-тариф — 92 000 руб.

Русский язык: да

Отечественная система 3D-проектирования для машиностроения и строительства, в которой можно создавать схемы тепловых узлов, подключения котельного оборудования и систем отопления. Специализированное приложение «Жизнеобеспечение: ОВ» автоматизирует выпуск документации по ГОСТ 21.602-2016. Интегрируется с ПО «Архитектура: АС/АР» для создания строительной подосновы.

Плюсы:
  • все руководства и обучение на русском языке;
  • каталоги с оборудованием ведущих производителей;
  • работа в 2D-чертежах с автоматической генерацией 3D-модели;
  • можно добавлять собственные элементы в каталоги.
Минусы:
  • лицензия обходится дороже многих аналогов;
  • профессиональная САПР с крутой кривой обучения, на освоение надо потратить много времени.

AutoCAD

AutoCAD

ОС: Windows, macOS

Цена: бесплатная версия на 30 дней с ограничениями — нет истории изменений, отсутствуют инструменты для совместной работы; PRO-тариф — от $260/месяц

Русский язык: нет

Эта программа для проектирования котельных, систем отопления и других объектов считается мировым стандартом, которым пользуются инженеры и архитекторы по всему миру. В AutoCAD можно строить 2D-чертежи и 3D-модели любой сложности. Версия AutoCAD MEP содержит готовые инструменты для сантехников — библиотеки оборудования от производителей, автоматический расчет диаметров трубопроводов, формирование аксонометрических схем по ГОСТам.

Плюсы:
  • формат DWG стал стандартом в проектировании;
  • огромная экосистема — плагины от тысяч разработчиков, обучающие материалы, форумы;
  • специализированные наборы инструментов для создания отопительных систем.
Минусы:
  • высокая цена;
  • чтобы полноценно освоить ПО, потребуется много времени;
  • пользователям из РФ может потребоваться изменение IP-подключения.

Archicad

ArchiCAD

ОС: Windows, macOS

Цена: бесплатная версия на 30 дней с ограничениями — наложение водяного знака; лицензия — от $201/месяц

Русский язык: да

BIM-платформа от венгерской компании Graphisoft для архитектурного проектирования с возможностью моделирования инженерных систем. С расширением MEP Modeler можно создавать 3D-модели систем отопления, вентиляции и водоснабжения. Функция обнаружения коллизий проверяет пересечения труб с конструктивными элементами, поддерживается экспорт в IFC для обмена со специалистами.

Плюсы:
  • одним кликом можно прокладывать трубы с автоматическими соединениями и отводами;
  • находит пересечения со стенами, балками и другими системами;
  • есть сотни плагинов и дополнений, которые помогут лучше настроить Archicad под свой проект.
Минусы:
  • сложность освоения;
  • требовательность к железу — нужно минимум от 8 ГБ ОЗУ и видеокарта от 4 ГБ;
  • проблемы с доступом для пользователей из России, при регистрации аккаунта и активации подписки может потребоваться изменение географического местоположения подключения.

Сравнительная таблица

Название
Логотип Домашний инженер 3D Домашний инженер 3D
Логотип Мой Дом 3D Мой Дом 3D
Логотип Remplanner Remplanner
Логотип Valtec Valtec
Логотип OVplan OVplan
Логотип Easymnemo Easymnemo
Логотип Sweet Home 3D Sweet Home 3D
Логотип nanoCAD BIM Отопление nanoCAD BIM Отопление
Логотип SketchUp SketchUp
Логотип Компас-3D Компас-3D
Логотип AutoCAD AutoCAD
Логотип Archicad Archicad
Платформа
Windows
Windows
Web
Windows, Linux
Windows
Windows
Windows, macOS, Linux, web
Windows, Linux, РЭД ОС
Windows, macOS, web
Windows
Windows, macOS
Windows, macOS
Русский язык
Alt
Alt
Alt
Alt
Alt
Alt
Alt
Alt
Alt
Alt
Alt
Alt
Бесплатный период
5 дней
5 дней
По времени нет ограничений, но функционал урезан
По времени нет ограничений, но функционал урезан
По времени нет ограничений, но функционал урезан
30 дней
По времени нет ограничений, но функционал урезан
30 дней
30 дней
60 дней
30 дней
30 дней
Входит в реестр ПО РФ
Alt
Alt
Alt
Alt
Alt
Alt
Alt
Alt
Alt
Alt
Alt
Alt
Подойдет новичку
Alt
Alt
Alt
Alt
Alt
Alt
Alt
Alt
Alt
Alt
Alt
Alt
Особенность
Может проектировать отопительные системы любой сложности
Можно продумать расположение элементов системы отопления
Проектирование отопления и водоснабжения с акцентом на технические чертежи
Есть обучающие ролики от разработчика
Встроенная база трубопроводов разных производителей
Большая библиотека элементов: трубы, радиаторы, котлы и т. д.
Большая библиотека 3D-моделей: мебель, радиаторы, системы отопления
Расчет и оформление документации по российским стандартам
Сотни готовых моделей мебели и сантехники в библиотеке
Качественно оформляется проектная документация
Формат DWG стал стандартом в проектировании
Взаимосвязь между всеми частями проекта с технологией виртуального здания

Заключение

Выбор софта для проектирования отопления зависит от вашей квалификации и масштаба задачи. Новичкам подойдут простые планировщики с русским интерфейсом и встроенными расчетами. Они автоматически вычислят теплопотери, подберут мощность котла и составят смету материалов.

Профессиональным инженерам нужны CAD-программы для гидравлического расчета системы отопления с точными вычислениями по СП и ГОСТ, экспортом рабочей документации в DWG/PDF, интеграцией с BIM. Такие решения стоят дорого и требуют месяцев обучения.

Для типового частного дома оптимальным выбором станет Домашний Инженер 3D. Программа автоматически рассчитает теплопотери каждой комнаты, подберет мощность котла и радиаторов, покажет систему в 3D. При этом вы не потратите нескольно месяцев на освоение сложного CAD-софта. Интерфейс у ПО понятен даже тем, кто впервые занимается проектированием.

Поделиться с друзьями:

Часто задаваемые вопросы

Можно ли комбинировать разные программы?

Да, многие проектировщики используют связку из нескольких приложений. Главное, чтобы софт поддерживал экспорт в совместимые форматы.

В какой программе можно посмотреть коммуникации в режиме 3D?

Такую визуализацию предлагают Домашний Инженер 3D, nanoCAD BIM Отопление и SketchUp.

В какой программе можно нарисовать схему отопления бесплатно?

Например, в пробных версиях Remplanner и Домашний Инженер 3D.

дом

Проект
квартиры или дома
за 5 минут

Используйте простую программу
для проектирования дома
Скачать для Windows
AltЧертеж с размерами и 3D-визуализация
Комментарии (0)
Прокомментируйте первым!
Смотреть ещё
Оставить комментарий:
Введено символов: 0 из 1000
Антиспам:
=